Commercial
Sinar 38
A new medium industrial park located at the NorthWest of
Kwasa Township’s Border
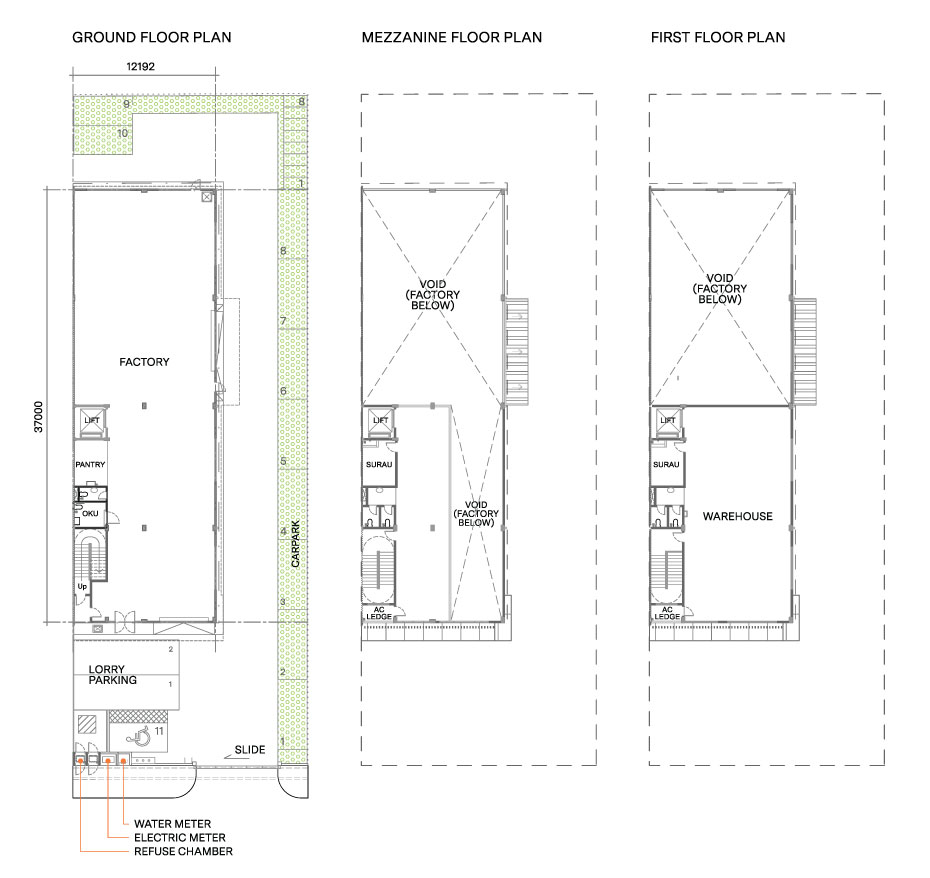
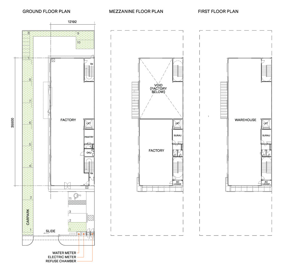
01
Mezzanine Floor
Perfect for showroom displays and retail businesses. and can be used as a reception area
02
High Ceiling
Double volume height of 20 feet to maximise space utilisation
03
Service Lift
Service lift access for moving goods
across three levels.
04
Motorised Roller Shutters
Roller shutter at the side of the
warehouse to facilitate goods
circulation.
Sinar 38
Welcome to the Future of Business
FEATURES
Why This Site Is Unique
Perfectly situated, offering seamless access and effortless connectivity to major destinations through an extensive network of highways and expressways.
Connected to mega townships
Located at the north-western border of Kwasa Damansara, it enables close connectivity to the mega and modern township via a proposed bridge link to Persiaran Atmosfera.
Future bridge link
The proposed bridge will provide fast access to Kwasa Damansara, Kota Damansara, Subang, Elmina City and surroundings.
High occupancy rates
Surrounded by matured local SMEs in manufacturing, furniture and food industries and other warehouses.
MRT nearby
Close to 2 MRT stations :
• MRT Kwasa Sentral
• MRT Kwasa Damansara
We Are Strategically Connected
DASH
Damansara - Shah Alam Highway
GCE
Guthrie Corridot Expressway
NVKE
New Klang Valley Expressway
LATAR HIGHWAY
KL - Kuala Selangor Highway
NSR
North - South Expressway
JALAN KUALA SELANGOR
JALAN SUNGAI BULOH

DASH
Damansara - Shah Alam Highway
GCE
Guthrie Corridot Expressway
NVKE
New Klang Valley Expressway
LATAR HIGHWAY
KL - Kuala Selangor Highway
NSR
North - South Expressway
JALAN KUALA SELANGOR
JALAN SUNGAI BULOH
Specifications
Features
Type A
Type B
approx. 40’ X 121’
Total Area
40’ X 111’
40’ X 121’
Lifts
Car Parking
Lorry Parking
Enquiries?









